For sale & rent
物件情報
JR神戸線六甲道駅徒歩2分 小型犬飼育可能・事業用としての利用可能の1Rです。3方角部屋、上層階東向きで住設備の整ったマンションです。
賃料10.5万円
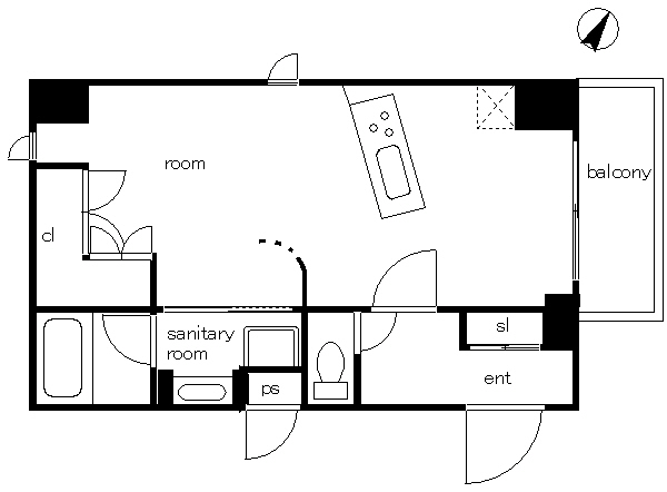
Floor plan 間取り図
Property Description 物件概要
- 所在地
- 神戸市灘区永手町三丁目4番7号
- 交通
- JR神戸線 六甲道駅 徒歩2分
- 構造
- RC造7階建て
- 総戸数
- 17
- 専有面積
- 1R/35.00
- 築年月日
- 2010年12月
- 駐車場
- 空無し
- 駐輪場
- 有(1台に付、原付バイク1,000円、自転車は500円)/月
- 設備
- オートロック・エレベーター・宅配ボックス・防犯カメラ
- 賃料
- 10.5万円
- 管理費等
- 8,000円/月
- 保証金
- 1ヶ月(賃料及び管理費、共益費の合計額です。)
- 礼金
- 1ヶ月(賃料及び管理費、共益費の合計額です。)
ペット飼育、事業用の場合はそれぞれ1か月分アップ。 - 保証会社プラン
- 日本セーフティー
総賃料の65%~
更新事務手数料12,000円/年
事業用の場合は要確認ください。 - 借家人賠償保険
- 20,000円~/2年
- 契約期間
- 2年
- 現況
- 居住中 10月下旬以降内覧可能です。
- 引き渡し
- 11月中旬以降
- 備考
- 更新料30,000円(別途消費税)/2年
(小型犬1匹)ペット飼育、事業用の場合は15,000円(別途消費税)/1年(定期建物賃貸借契約更新可能型)